Finská sauna KARIBU SKROLLAN 3 86308 s předsíní
Kód: LG1931Související produkty
Detailní popis produktu
Exteriérová finská sauna KARIBU SKROLLAN 3 86308 s předsíní
Venkovní model finské sauny pro vaši zahradu. Sauna je určená pro 3 ležící osoby. Moderní design s chromovými rohovými lištami. Její výrobce, firma KARIBU HOLZTECHNIK z německých Brém, dokázala svými výrobky úspěšně navázat na staletou tradici skandinávského saunování a současně do ní zapracovat dnešní moderní technologie. Dodáváme jako stavebnici v rozloženém stavu, kde stěny tvoří jednotlivé dřevěné profily, které pouze sesadíte k sobě a sešroubujete, střechu tvoří celistvá deska. To garantuje jednoduchou montáž, kterou zvládne každý domácí kutil. Stěny sauny jsou složeny ze speciálně hlazených prken s dvojitým perem a drážkou, což garantuje neobyčejnou pevnost spoje. Aby teplo z vnitřních prostor sauny nemohlo unikat, je instalován druhý strop z rámové konstrukce s minerální izolační vatou o tloušťce 42 mm.
Popis sauny:
- síla profilů 38 mm
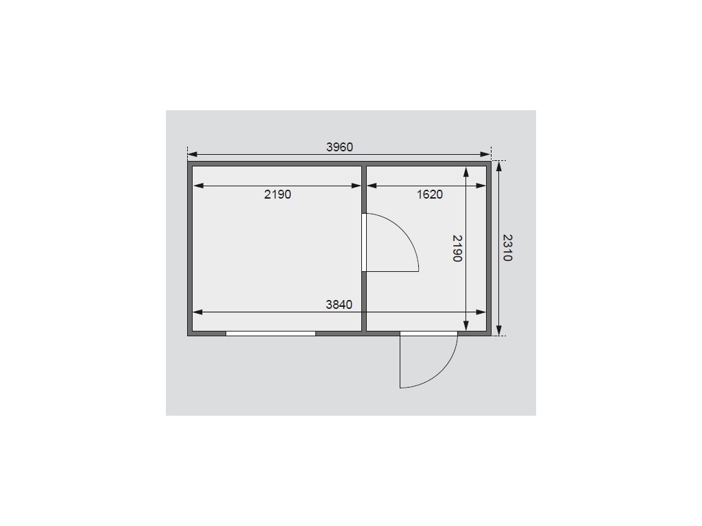
- vnější rozměry: š 393 x h 231 cm
- vnitřní rozměr: š 384 x h 219 x v 203 cm
- rozměr střechy š 433 x h 262 cm
- plocha: 4,8 m² + 3,54 m², vnitřní prostor: 19,10 m³
- přední vstup
- výška stěny: 208 cm
- výška k hřebeni: 239 cm
- 1x okno s izolačním dvojsklem 4 /16 / 4 mm s prostupem tepla K=1,1 W/m²K (okna je možné použít v saunovací místnosti i v předsíni)
- podlaha: masivní palubky, 96 mm široké, 19 mm silné, tlakově impregnovaný nosný rám podlahy
- 1. dveře: izolované dřevěné dveře s čirým izolačním sklem, zámek se 3 klíči, lze instalovat pouze jako levé (průchod: 78 x 175 cm)
- 2. dveře: celoskleněné dveře s kouřově hnědým izolačním sklem 8 mm, (průchod: 64 x 173 cm)
- střecha: plochá střecha, tepelná izolace minerální vlnou 42 mm
- přední převis střechy: 25 cm
- boční převis střechy: 20 cm
- zadní převis střechy: 10 cm
- plocha střechy: 11,20 m²
- sklon střechy: 6°
- 3x lehátko z osikového dřeva
- 1. lehátko šířka 57 cm (max. 250 kg)
- 2. lehátko šířka 57 cm (max. 250 kg)
- 3. lehátko šířka 52 cm (max. 250 kg)
- dřevěný ochranný rám na kamna
- barva: přírodní dřevo
Certifikace:
Špičková kvalita tohoto výrobku je potvrzena českým CERTIFIKÁTEM VÝROBKU č. 3893/222/§5a/20205 a STAVEBNĚ TECHNICKÝM OSVĚDČENÍM STO-3893/25 vydaným Výzkumným a vývojovým ústavem dřevařským Praha s.p. (autorizovaná osoba 222).
Saunová kamna:
Kamna nejsou obsahem dodávky sauny. Jde o venkovní saunu, takže doporučujeme dokoupit výkonná 9 kW kamna. Vyžaduji však 400 V, jištění 16 A, kabel 5 x 2,5 mm a zapojení doporučujeme odborníkem. Velkou výhodou je rychlé vyhřátí sauny. Dodáváme s integrovaným ovladačem přímo na kamnech nebo s externím digitálním ovladačem (pro montáž zvenku sauny). Všechny modely kamen mají vnitřní části z koroze odolných materiálů a jsou dodávány včetně 18 kg saunových kamenů. Přibližnou dobu pro vytopení sauny na saunovací teplotu naleznete v dokumentu „Přibližná doba pro nahřátí sauny.“
Základy sauny:
Věnujte prosím MIMOŘÁDNOU péči při budování základu pro saunový domek. Základ postavte tak, aby horní hrana základu přesahovala asi 5 cm okolní terén. Základ musí být přesně vyvážen do vodorovné roviny a odvodněn, aby základové trámky ležely v rovině. Aby bylo zabráněno přímému kontaktu se zemí a vniknutí zemní vlhkosti do trámků, podložte nosný rošt domku pásky z bitumenové lepenky (nejsou součástí dodávky). Pro trvanlivost základu je nutno dodržet tyto nejdůležitější předpoklady - podklad, pravoúhlost a přesná rovina. S kvalitním základem vydrží domek o mnoho let déle. Nechte si poradit nebo základ zhotovit odborníkem-stavařem. V případě, že chcete saunu využívat kromě léta i v chladnějších měsících, doporučujeme umístit do základového roštu pod podlahové palubky vhodnou tepelnou izolaci, ideálně minerální vlnu (není obsahem balení).
Střecha:
Střecha je zhotovena z dřevěných desek 16 mm. Střešní krytina není obsahem dodávky a je nutné ji ihned po stavbě doplnit podle vlastní volby. Pro domky se šikmou střechou doporučujeme samolepící bitumenovou lepenku, na ploché střechy samolepící střešní hliníkovo-bitumenovou fólii. U střech se sklonem >15° je vhodný i bitumenový šindel. Potřebný počet rolí samolepící ALU-bitumentové krytiny o rozměru 1 x 5 metrů pro tento model domku = 3 role.
Podlaha:
Podlaha se skládá ze smrkových palubek síly 19 mm a šířky 96 mm s pérem a drážkou. Nosný rám podlahy je pak tvořen tlakově impregnovanými profily.
Povrchová úprava domku:
Tento saunový domek KARIBU je dodáván v provedení přírodní dřevo:
- Přírodní dřevo - před montáží musí být všechny stavební díly ošetřeny pouze z vnější strany hluboko působícím základním nátěrem a preventivním nátěrem proti zamodrání a plísni. Pro konečný nátěr použijte povětrnostně odolnou lazuru s dobrými fyzikálními vlastnostmi, která ochrání dřevo proti vlhkosti a slunečnímu záření. Lazura by měla být zároveň voděodpudivá, světlostálá a vlhkosti odolná. Dbejte na to, aby lazura měla dostatek barevného pigmentu, protože jinak by mohlo dojít k zešednutí dřeva. Nepoužívejte žádný lak! Nechte si podrobně poradit od odborného prodejce barev, co se týká ochrany přírodního jehličnatého dřeva a dodržujte pracovní postup výrobce nátěrové hmoty. Další nátěr provádějte po dokonalém zaschnutí a vyvětrání. Důkladnou ochranou dřeva ovlivníte zásadně životnost saunového domku. Vnější povrchovou ochranu domku je nutné pravidelně opakovat a domek tak udržovat v dobrém stavu. DŮLEŽITÉ - vlastní saunovací místnost z vnitřní strany nijak neošetřujeme ani ničím nenatíráme, saunu z venkovní strany ano. Případnou předsíň saunového domku (vybrané modely) ošetřete i zevnitř.
Vyhřátí sauny:
Teplota v sauně by měla kolísat mezi 80-90 °C. Je třeba počítat s tím, že teplý vzduch se hromadí u stropu, proto se teplota v různých výškách může výrazně lišit. Teplota u podlahy by se měla pohybovat okolo 20-25 °C, v úrovni lavic by měla být teplota v rozmezí 65-75 °C. Teploty měřte min 10 cm od stěn. Pokud máte v úmyslu venkovní saunu využívat i v zimním období, tak počítejte s tím, že na rychlost a zejména výši a rozložení dosažené teploty mohou mít zcela zásadní vliv venkovní podmínky. Při nízkých teplotách pod bodem mrazu a silném zimním chladném větru se může sauna vyhřívat výrazně delší dobu, případně dojde k dosažení nižších teplot. V případě využívání sauny v zimním období doporučujeme podlahu sauny odizolovat od plochy, na které je sauna postavena (pomocí tvrzeného polystyrenu, minerální vaty, PUR desek apod.). Podchlazené základy mohou výrazně ochlazovat podlahu sauny a způsobit výrazné prodloužení doby vytopení prostoru. Případně saunu vybavte kamny navíc.
Skladování před montáží:
Pozor, balík s materiálem není vodotěsný. Folie chrání dřevo jen proti znečištění. Skladujte proto stavební sadu až do konečné montáže v suchu, ne přímo položenou na zemi, chráněnou proti vlivům počasí (vlhkost, slunce atd.). Neskladovat ve vytápěném prostoru!
Povolení ke stavbě saunového domku:
Dřevěný domek s pevnými základy může vyžadovat určitá povolení od místních úřadů. Proto raději před nákupem domku ověřte na stavebním úřadě aktuální situaci s územním rozhodnutím (rozhodnutí o umístění stavby). Doporučujeme na všech místních úřadech ověřit platné předpisy pro oblast plánované stavby domku, protože stavba domku může být úřady zrovna v místě vaší zahrady z různých důvodů omezena. Pokud máte zahrádku (pozemek) v nájmu, tak se musíte dohodnout i s jejím majitelem.
Doprava:
Osobní odběr na pobočkách LANIT PLAST je možný, nicméně počítejte s velkou hmotností výrobku a s nutností odpovídajícího přívěsného vozíku nebo raději dodávky (např. tranzitu). Pokud si objednáte dopravu LANIT PLAST, tak saunu dopraví výrobce v rozloženém stavu nejblíže hranici vašeho pozemku. Sauna bude složena vedle nákladního vozidla, které přijede co nejblíže vámi udané adrese. Jakoukoliv další manipulaci s výrobkem (např. z místa složení do bytu, na zahradu, do garáže) si musí zajistit kupující, dopravce další přemisťování sauny nezajišťuje. Při vykládce je nutná spolupráce kupujícího. Především u větších saun předem počítejte s tím, že zabalená sauna může představovat více palet o celkové hmotnosti ve stovkách kg!
Upozornění:
- výrobek je dodáván v rozloženém stavu
- produkt na obrázku může obsahovat příplatkové příslušenství nebo prvky, které nejsou obsahem základního balení
- tento produkt je určen výhradně pro nekomerční domácí použití
- použité bezpečností (kalené) sklo obsahuje sulfid nikelnatý a je proto extrémně křehké a citlivé na zacházení; při montáži nesmí dojít k prohnutí skleněné desky (proto desku nezvedejte z pouze z jedné strany, ale rovnoměrně ji podepřete); v žádném případě nesmí dojít k přílišnému utažení šroubů ve skle (klika a panty) - dotahujte velmi jemně; sklo je obecně křehký materiál, takže rozbití skleněné tabule dveří při manipulaci, montáži a používání nelze považovat za výrobní vadu skla a nemůže být předmětem reklamace
Technické parametry:
- šířka (vnější): 3,93 m
- výška (vnější): 2,69 m
- hloubka: 2,31 m
- hmotnost: 1006 kg
- tloušťka stěny: 38 mm
- materiál konstrukce: severský smrk
- materiál lavic: osikové dřevo
- dveře: jednokřídlé na pantech s izolačním sklem
- počet lavic: 2x / šířka 57 cm + 1x 52 cm
- počet osob: 3
- doporučený typ kamen: elektrická kamna
- doporučený příkon kamen: 9 kW
- plocha střechy: 11,20 m²
- doporučený počet ALU-bitumen rolí na střechu (1 x 5 m): 3 ks
- barva: přírodní dřevo
Doplňkové parametry
| Kategorie: | Venkovní finské sauny |
|---|---|
| EAN: | 4010090863085 |
| Barva: | Přírodní |
| Hloubka: | 2,31 m |
| Materiál konstrukce: | Dřevo |
| Počet osob: | 3 |
| Šířka: | 3,93 m |
| Tloušťka stěny: | 38 mm |
| Výška: | 2,69 m |
| Vlastní doprava: | 99 |
| Vlastní doprava s dobírkou: | 149 |
| Hmotnost: | 1006 kg |
Finská sauna KARIBU SKROLLAN 3 86308 s předsíní 01
Finská sauna KARIBU SKROLLAN 3 86308 s předsíní 02
Buďte první, kdo napíše příspěvek k této položce.
