DOORNITE Vnitřní dveře Basic bílý lak 145 cm dvoukřídlé
Kód: 100.100145-DV-Související produkty
Detailní popis produktu
DOORNITE dveře levné bílé interiérové (š. 1450 mm) Basic bílý lak
Klasické jednoduché bílé dveře pro každý interiér. Křídla dveří jsou opláštěna HDF lakovanou deskou. Jako výplň je zde nejběžněji využívaná voština. Jedná se o tvrzený papír v několika vrstvách, uspořádaný do tvaru šestiúhelníku - včelí plástev o průměru 25 mm. Interiérové dveře se vyrábějí jak v jednokřídlé, tak i dvoukřídlé variantě, ve standardních šířkách jednokřídlých dveří 60 - 110 cm nebo 125 - 185 cm u dveří dvoukřídlých. Standardní výška dveří je 197 cm. Nezapomeňte si ke svým dveřím vybrat odpovídající obložkové zárubně.
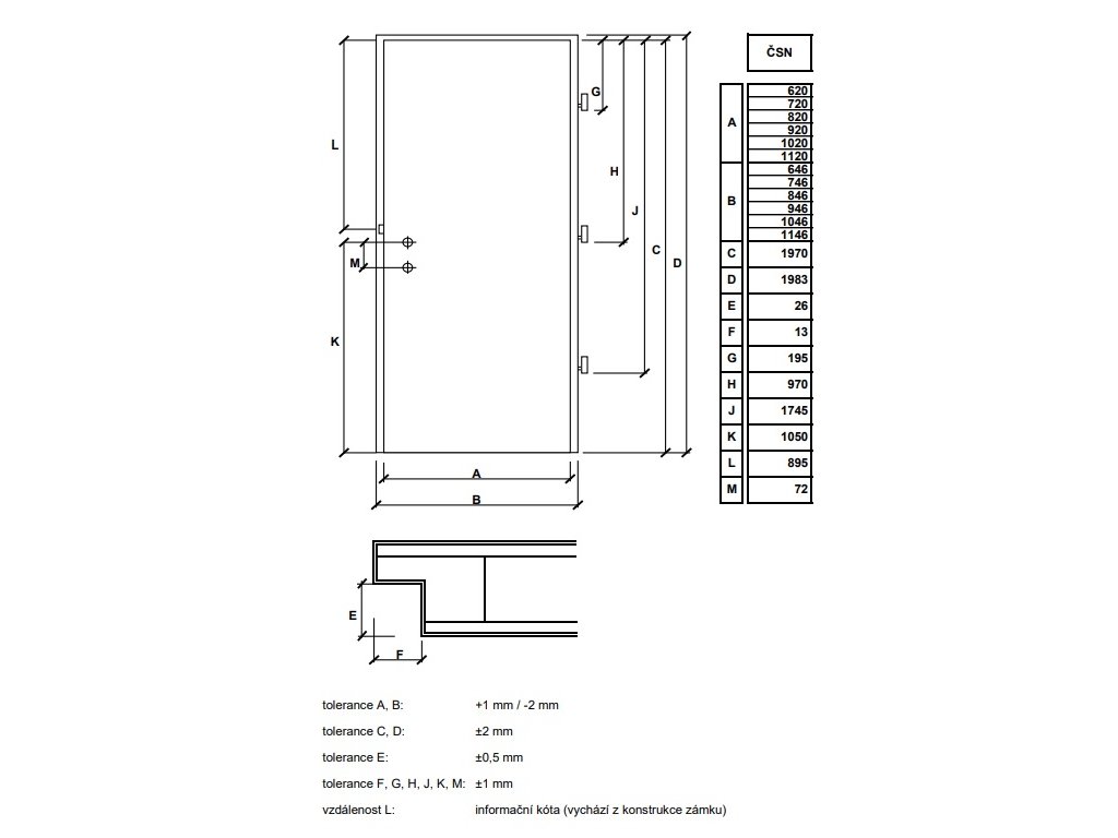
Technické parametry:
- Konstrukce dveří: MDF rám opláštěný HDF deskou - tloušťky 3 mm
- Povrchová úprava: HDF lakovaný plášť
- Výplň dveří: ztužená voština
- Rozteč zámku: 72 mm
- Dřevovláknité desky: tl. 39 mm
PŘÍSLUŠENSTVÍ V CENĚ: dveře jsou opatřeny standardně mezipokojovým zámkem, třemi závěsy
! veškeré interiérové dveře - VÝROBA NA ZAKÁZKU!
Doplňkové parametry
| Kategorie: | DVEŘE |
|---|---|
| Dekor: | Bílé |
| Počet v balení: | 1 ks |
| Povrch: | HDF lakovaný plášť |
| Provedení: | Dvoukřídlé |
| Připravená rozteč zámku : | 72 mm |
| Šířka: | 1450 mm |
| Typ: | Dveře |
| Výplň: | Ztužená voština |
| Výška: | 1970 mm |
| Vlastní doprava: | 846 |
Diskuze
Buďte první, kdo napíše příspěvek k této položce.
